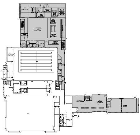
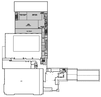
M D I    Y M C A
Two phase expansion of current facilities for new Recreation Room, locker areas, Fitness Center / Weight Training, Dance Studio, and Gymnastics Center.
Presently reviewing Schematic Design phase options
and cost analysis of building systems and materials.